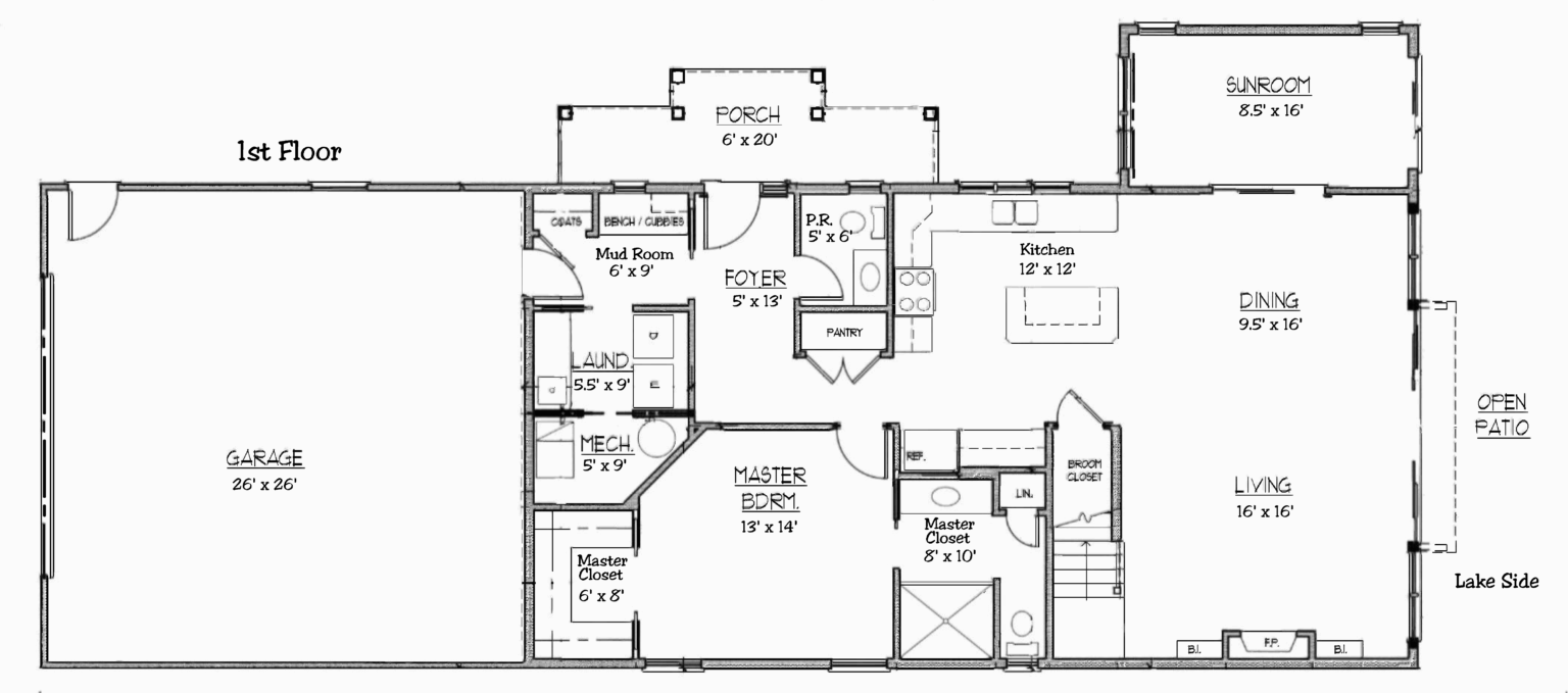
The "Debbie Ann"
Narrow lot plan, ideal for lake-front!
2,172 square foot - two story



















































Open floor plan
34 1/2′ wide by 74′ deep plan
(home could be narrowed)
Open floor plan
Vaulted living/dining room ceiling
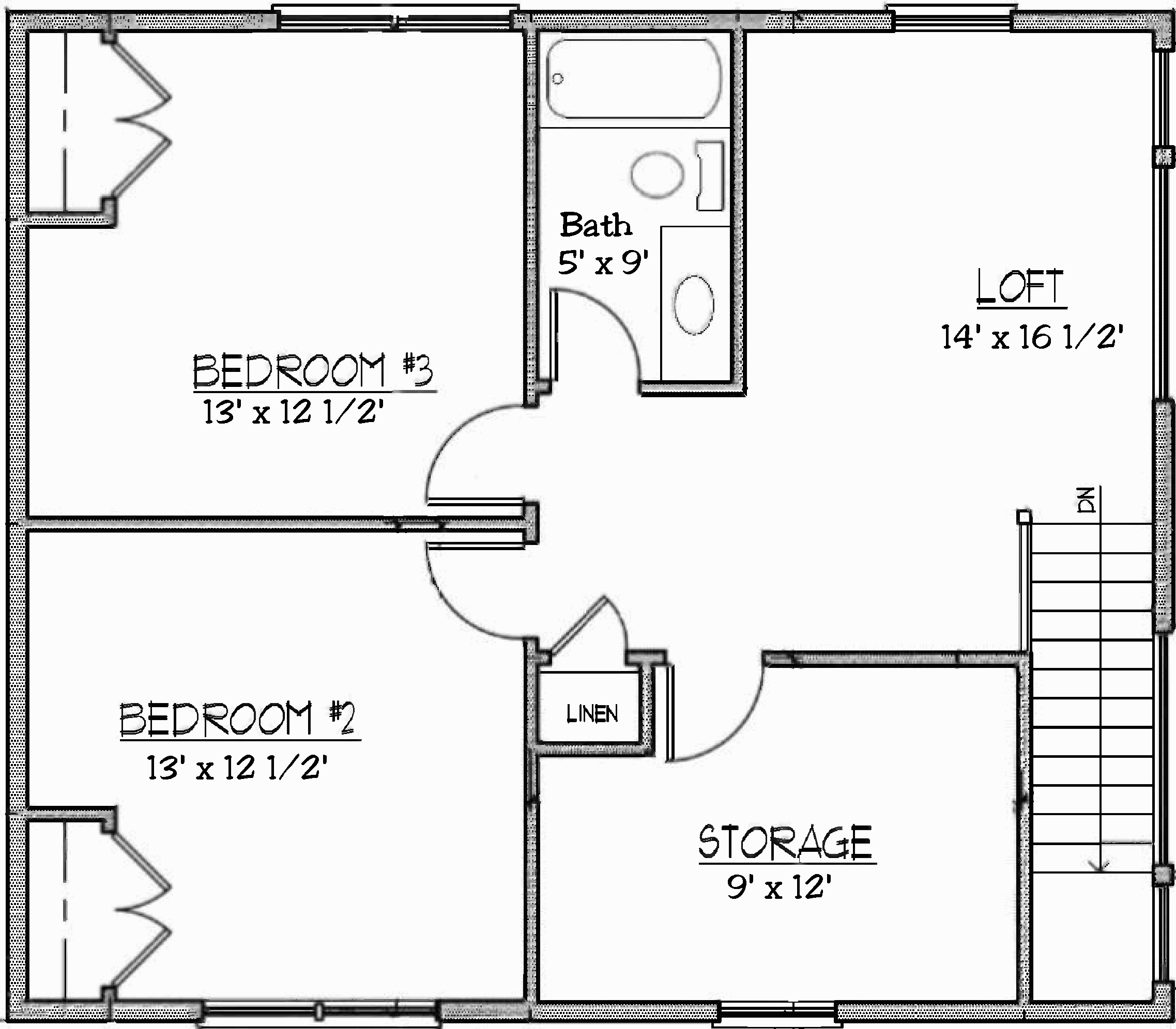
3 Bedrooms (possibly more)
2 1/2 Baths
1st Floor laundry
Nice kitchen!
island/breakfast bar
plenty of counter space
pantry
Great master suite
walk-in closet
master bath
Sun room with lake views
Mud Room
bench
cubbies
closet
Huge 26′ x 26′ garage
Loft area with lake views
Large upstairs storage room

